Dom CC1

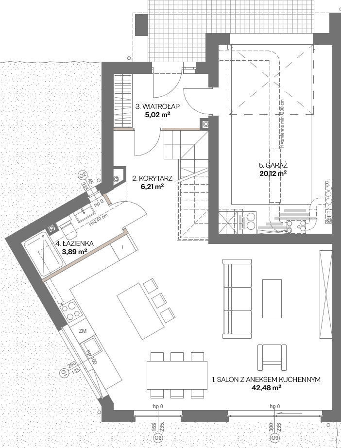
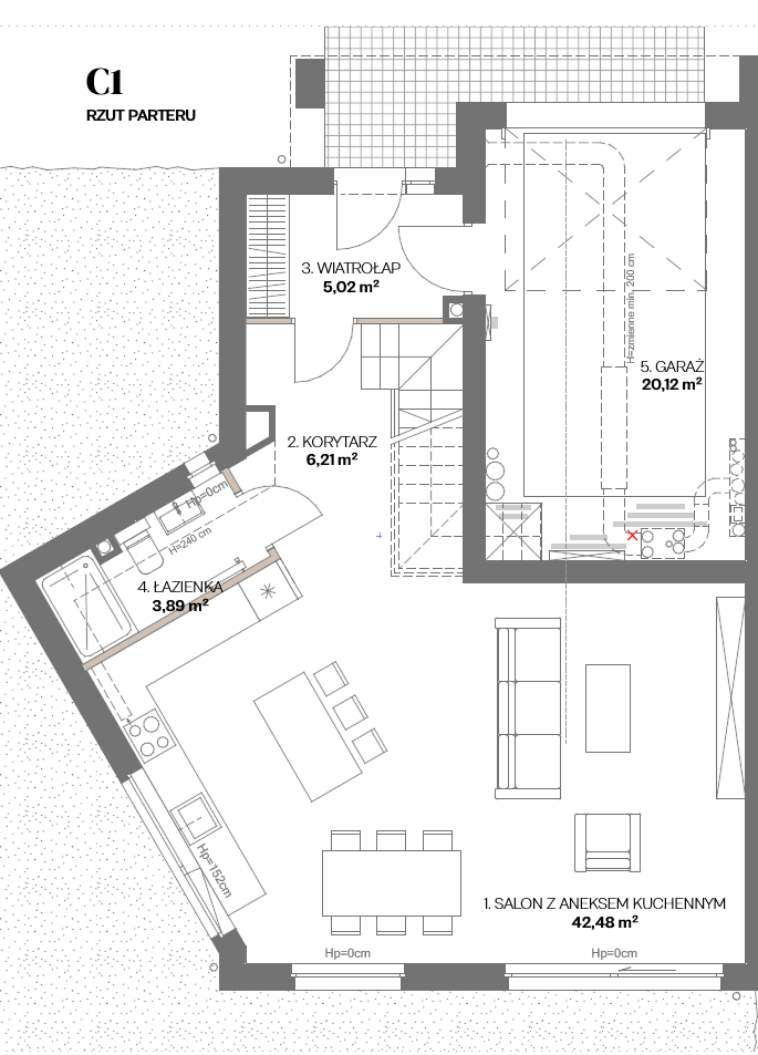
Parter

Strefa dzienna obejmuje przestronny salon z jadalnią, otwartą kuchnią i wyjściem do ogrodu. Na parterze znajduje się również łazienka z prysznicem oraz praktyczny wiatrołap. Dodatkowym atutem jest możliwość wejścia do lokalu bezpośrednio z garażu.

  • Plan lokalu Parter
    przykładowa aranżacja
    77,72 m2
  • Pokój dzienny z aneksem kuchennym 42,48 m2
  • Korytarz 6,21 m2
  • Wiatrołap 5,02 m2
  • Łazienka 3,89 m2
  • Garaż 20,12 m2
  • Ogród 235,52 m2

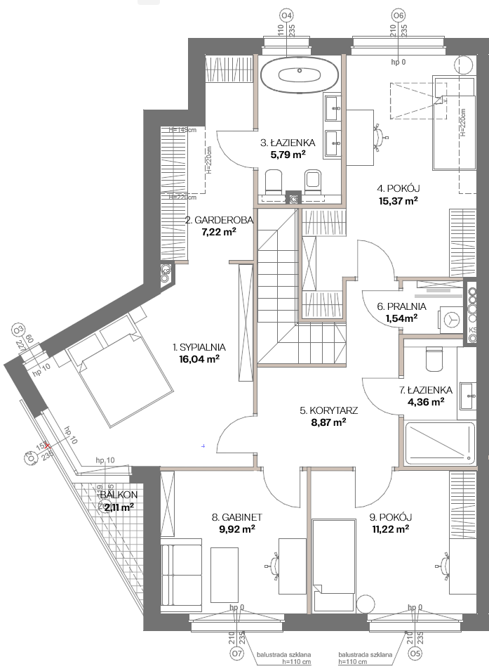
Pierwsze piętro

Na piętrze zaprojektowano cztery ustawne pokoje, które mogą pełnić funkcję sypialni, pokoi dziecięcych lub gabinetów – w zależności od potrzeb domowników. Strefa prywatna obejmuje również główną sypialnię (master bedroom) z prywatną łazienką i garderobą, zapewniającą komfort i poczucie prywatności. Dodatkowo na piętrze znajduje się druga łazienka oraz osobne pomieszczenie pralni.

  • Plan lokalu I Piętro
    przykładowa aranżacja
    80,33 m2
  • Pokój 11,22 m2
  • Pokój 9,92 m2
  • Pokój 15,37 m2
  • Pokój 16,04 m2
  • Garderoba 7,22 m2
  • Korytarz 8,87 m2
  • Łazienka 4,36 m2
  • Pralnia 1,54 m2
  • Łazienka 5,79 m2

Domy u Źródła Marii to miejsce wyjątkowe.
Poznajcie się.

Zapraszamy do kontaktu.

Barbara Robak
Opiekun inwestycji
+ 48 607 607 216

    *pola wymagane