Dom CC5

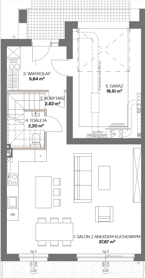
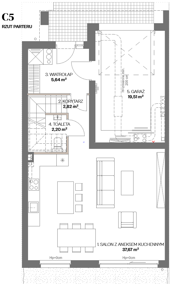
Parter

Strefa dzienna obejmuje przestronny salon z jadalnią, otwartą kuchnią i wyjściem do ogrodu. Na parterze znajduje się również łazienka z prysznicem oraz praktyczny wiatrołap. Dodatkowym atutem jest możliwość wejścia do lokalu bezpośrednio z garażu.

  • Plan lokalu Parter
    przykładowa aranżacja
    67,84 m2
  • Pokój dzienny z aneksem kuchennym 37,67 m2
  • Korytarz 2,82 m2
  • Wiatrołap 5,64 m2
  • Łazienka 2,20 m2
  • Garaż 19,51 m2
  • Ogród 44,71 m2

Pierwsze piętro

Na piętrze zaprojektowano cztery ustawne pokoje, które mogą pełnić funkcję sypialni, pokoi dziecięcych lub gabinetów – w zależności od potrzeb domowników. Strefa prywatna obejmuje również główną sypialnię (master bedroom) z prywatną łazienką i garderobą, zapewniającą komfort i poczucie prywatności. Dodatkowo na piętrze znajduje się druga łazienka oraz osobne pomieszczenie pralni.

  • Plan lokalu I Piętro
    przykładowa aranżacja
    72,26 m2
  • Pokój 11,67 m2
  • Pokój 12,13 m2
  • Pokój 13,08 m2
  • Pokój 10,32 m2
  • Garderoba 3,33 m2
  • Korytarz 9,08 m2
  • Łazienka 6,55 m2
  • Pralnia 2,23 m2
  • Łazienka 3,87 m2

Domy u Źródła Marii to miejsce wyjątkowe.
Poznajcie się.

Zapraszamy do kontaktu.

Barbara Robak
Opiekun inwestycji
+ 48 607 607 216

    *pola wymagane