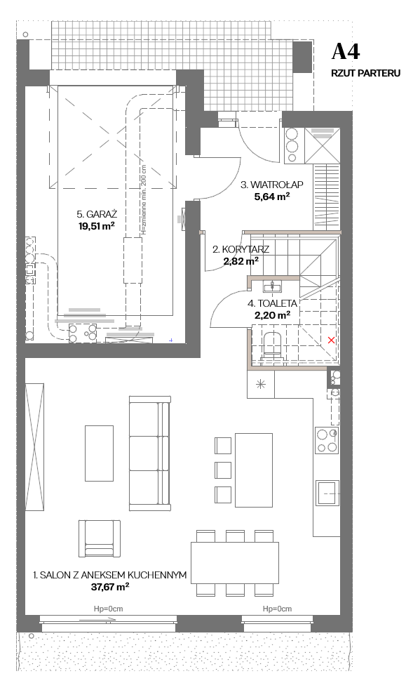
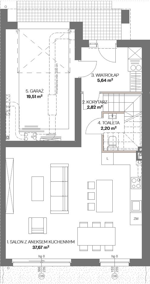
Strefa dzienna obejmuje przestronny salon z jadalnią, otwartą kuchnią i wyjściem do ogrodu. Na parterze znajduje się również łazienka z prysznicem oraz praktyczny wiatrołap. Dodatkowym atutem jest możliwość wejścia do lokalu bezpośrednio z garażu.
Parter
Strefa dzienna obejmuje przestronny salon z jadalnią, otwartą kuchnią i wyjściem do ogrodu. Na parterze znajduje się również łazienka z prysznicem oraz praktyczny wiatrołap. Dodatkowym atutem jest możliwość wejścia do lokalu bezpośrednio z garażu.

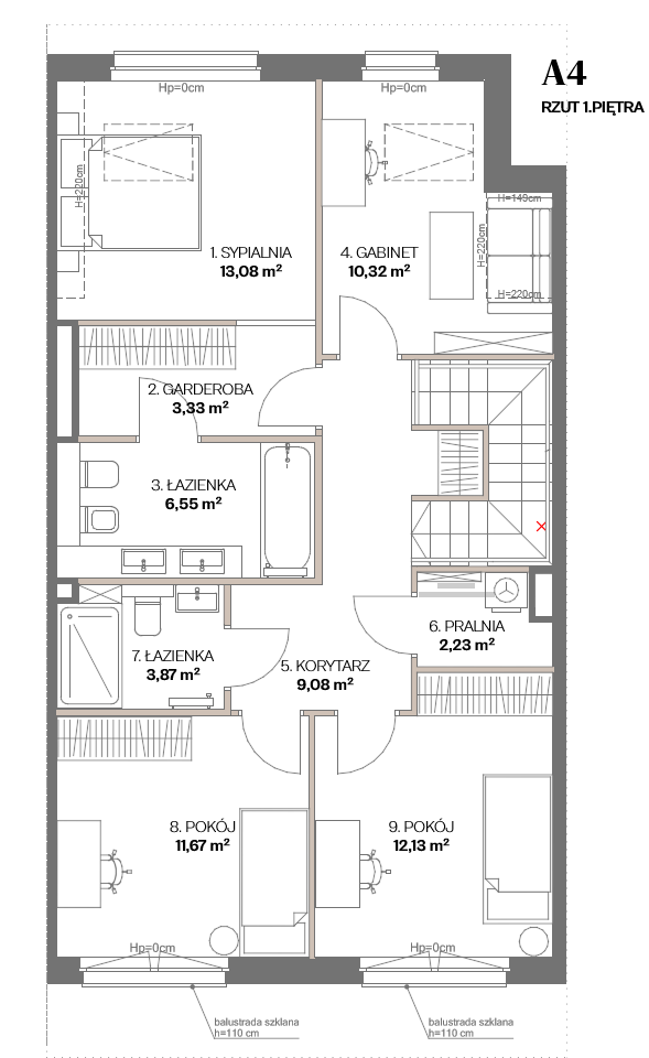
Pierwsze piętro
Na piętrze zaprojektowano cztery ustawne pokoje, które mogą pełnić funkcję sypialni, pokoi dziecięcych lub gabinetów – w zależności od potrzeb domowników. Strefa prywatna obejmuje również główną sypialnię (master bedroom) z prywatną łazienką i garderobą, zapewniającą komfort i poczucie prywatności. Dodatkowo na piętrze znajduje się druga łazienka oraz osobne pomieszczenie pralni.

Zapraszamy do kontaktu.
Barbara Robak
Opiekun inwestycji
+ 48 607 607 216